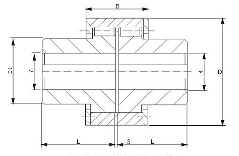
|
型 号 |
公称转距 Tn N.m |
许用转速 r/min |
轴孔直径
d1,d2,dz |
轴孔长度
Y,J1 |
D |
B |
S |
转动惯量 kg.㎡ |
质量 kg |
|
L、L1 |
|
ZL1 |
100 |
4000 |
12-24 |
27-52 |
76 |
42 |
2.5 |
0.0004 |
0.86 |
|
ZL2 |
250 |
4000 |
16-32 |
30-82 |
92 |
50 |
2.5 |
0.003 |
3.23 |
|
ZL3 |
630 |
4000 |
25-42 |
44-112 |
118 |
69 |
3 |
0.011 |
6.57 |
|
ZL4 |
1600 |
4000 |
40-60 |
84-142 |
158 |
89 |
4 |
0.046 |
14.8 |
|
ZL5 |
4000 |
4000 |
50-80 |
84-172 |
192 |
89 |
4 |
0.114 |
24.8 |
|
ZL6 |
6300 |
3300 |
60-95 |
107-172 |
230 |
111 |
5 |
0.28 |
42.5 |
|
ZL7 |
10000 |
2900 |
70-110 |
107-212 |
260 |
113 |
5 |
0.56 |
66.3 |
|
ZL8 |
16000 |
2500 |
80-130 |
132-252 |
300 |
136 |
6 |
1.21 |
107.3 |
|
ZL9 |
25000 |
2300 |
90-150 |
132-252 |
335 |
149 |
7 |
1.98 |
140.9 |
|
ZL10 |
31500 |
2100 |
100-170 |
167-302 |
355 |
151 |
8 |
2.85 |
180.9 |
|
ZL11 |
40000 |
2000 |
110-180 |
167-302 |
380 |
170 |
8 |
3.9 |
219.3 |
|
ZL12 |
63000 |
1700 |
130-200 |
202-352 |
445 |
183 |
8 |
9.2 |
371.4 |
|
ZL13 |
100000 |
1500 |
150-240 |
202-410 |
515 |
218 |
8 |
15.6 |
470.0 |
|
ZL14 |
125000 |
1400 |
170-260 |
242-410 |
560 |
218 |
8 |
27.8 |
708.0 |
|
ZL15 |
160000 |
1300 |
190-300 |
282-470 |
590 |
238 |
10 |
33.4 |
768.0 |
|
ZL16 |
250000 |
1000 |
220-340 |
282-550 |
695 |
262 |
10 |
69.9 |
1169 |
|
ZL17 |
315000 |
950 |
240-380 |
330-550 |
768 |
282 |
10 |
122.7 |
1664 |
|
ZL18 |
400000 |
850 |
250-420 |
330-650 |
860 |
300 |
13 |
202.7 |
2193 |
|
ZL19 |
630000 |
750 |
280-450 |
380-650 |
970 |
320 |
14 |
341.2 |
2901 |
|
ZL20 |
1000000 |
650 |
320-500 |
380-650 |
1156 |
351 |
15 |
710 |
4251 |
|
ZL21 |
1600000 |
530 |
380-630 |
450-800 |
1440 |
355 |
18 |
1948 |
7514 |
|
ZL22 |
2000000 |
500 |
420-750 |
540-900 |
1520 |
396 |
19 |
2931 |
10148 |
|
ZL23 |
2500000 |
460 |
480-850 |
540-1000 |
1638 |
430 |
20 |
4379 |
13026 | |